
価格&プラン
HIRAYA
4つの大きさと方角に合わせて選べる。
ローコストでかなえる2階建て。
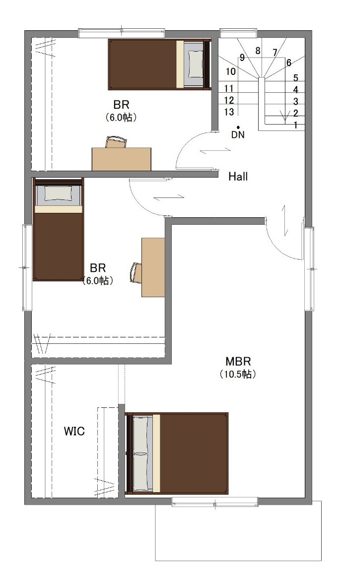
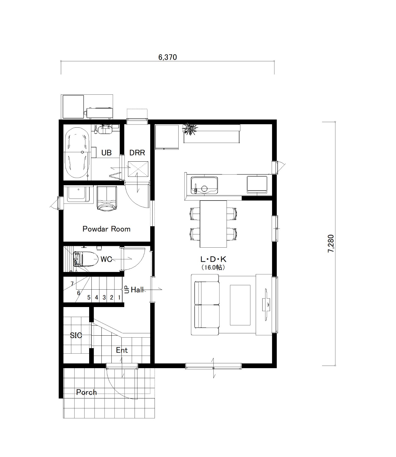
敷地に少しゆとりがある方向け、暮らしやすさにこだわった31坪プランです。
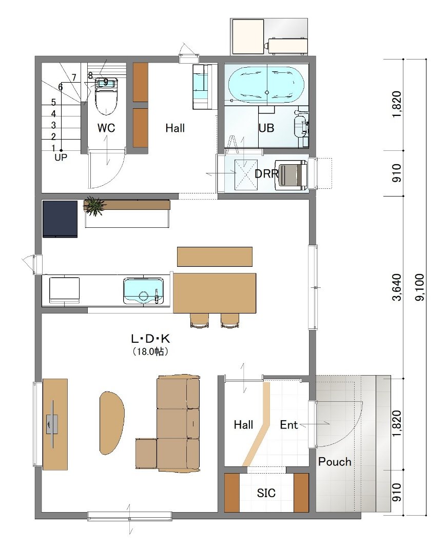
キッチンとダイニングを横並びにし、水回りもまとめることで毎日の家事がスムーズ&時短になります。
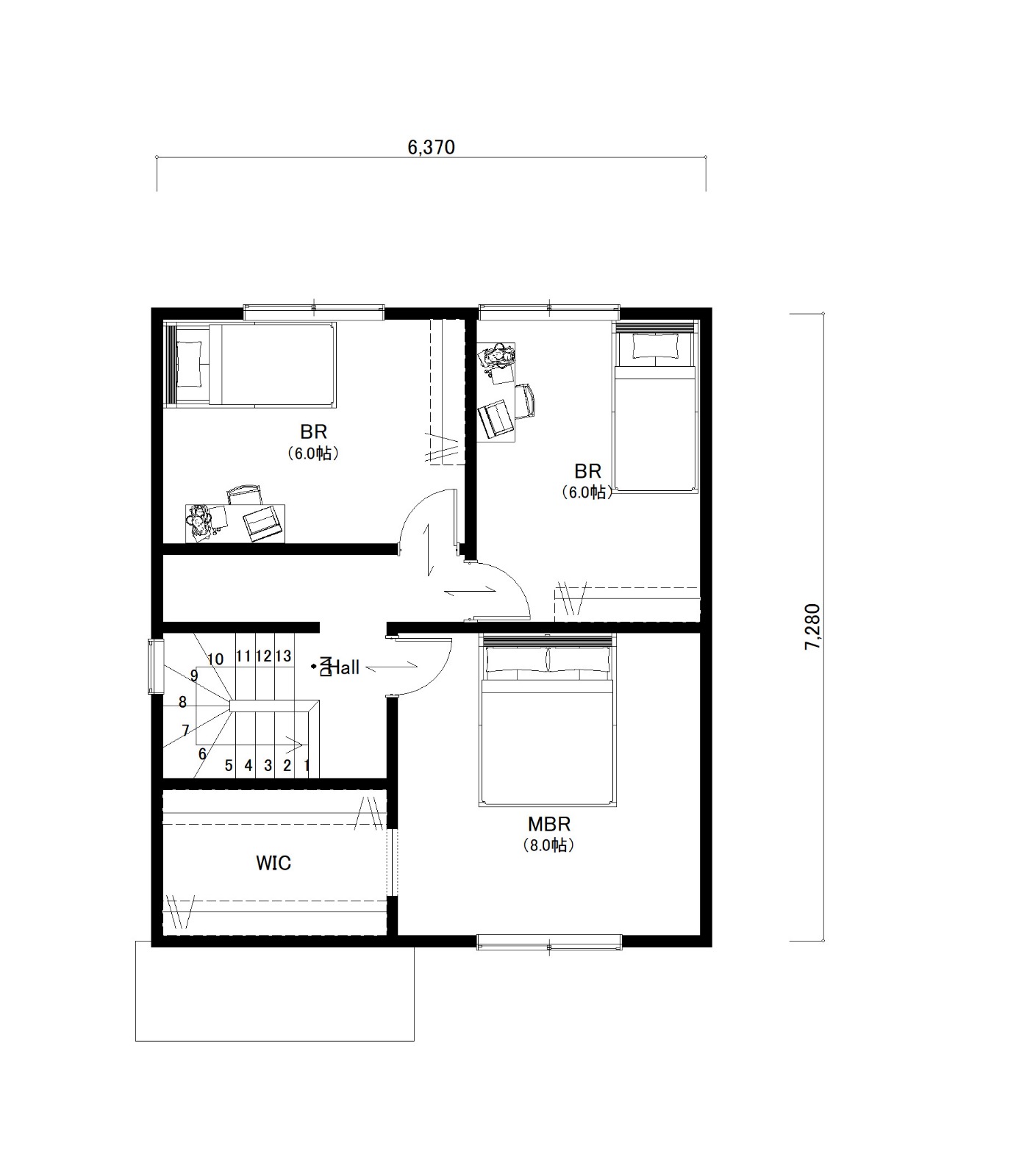
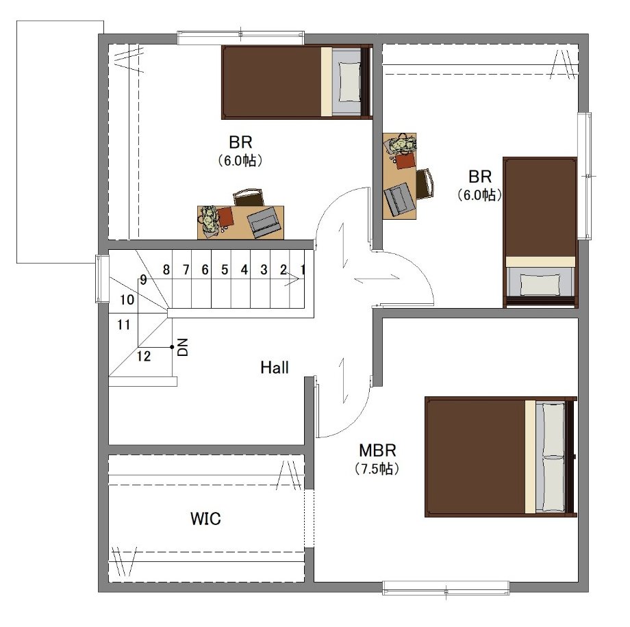
2階はゆとりある10.5帖の主寝室に加え、しっかり収納付きの個室が2部屋。
書斎コーナーを設けることもでき、ライフスタイルに合わせた使い方が可能です。



カステルホームの2階建て規格住宅『NIKAI』の価格はわかりやすくシンプルにしました。
さらに標準仕様に加え、あったらうれしい人気の設備『ええやん5』をセレクト!





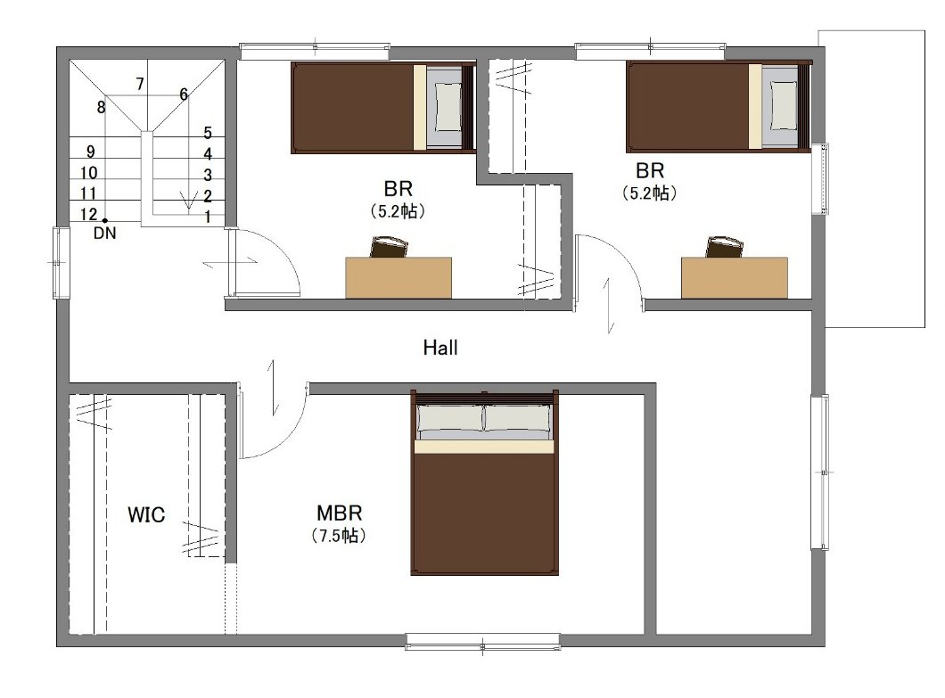
26坪 北向きプラン 3LDK
26坪 南向きプラン 3LDK
29坪 南向きプラン 3LDK
29坪 西向きプラン 3LDK
31坪 南向きプラン 3LDK
31坪 東向きプラン 3LDK
33坪 東向きプラン 4LDK
33坪 西向きプラン 4LDK
FACADE DESIGN